|
|
Projekte
|
|
Projektinformationen: Hochwasserschutz Hirtenberg
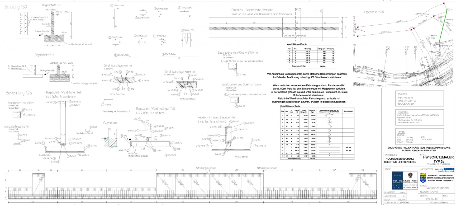
Aufgrund immer wiederkehrender schwerer Hochwässer wird die Triesting im Gemeindegebiet von Hirtenberg im Querschnitt aufgeweitet und mit Hochwasserschutzmauern begrenzt, die teilweise - wo die Strasse gequert wird - mit mobilen Elementen (Dammbalken) abgeschottet werden.
|
|
Stützwand Typ 3
|
|
|
|
Stützwand Typ 5a
|
|
|
|
|
| |
|
|