|
|
Projekte
|
|
Projektinformationen: Pletschgraben
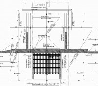
Zum Schutz vor Hochwässern und Vermurungen des Gemeindegebietes Turnau in der Obersteiermark wurde ein Hochwasserrückhaltebecken, bestehend aus einer Betonsperre mit Grobrechen und anschließendem Erddammkörper errichtet.
3D-Objekte:
|
|
Pletschgraben
|
|
|
|
Sperre Rechen
|
|
|
|
Sperre Vorderansicht
|
|
|
|
Sperre Rückansicht
|
|
|
|
|
|
| |
|
|